SOUS OPTION - COMPROMIS EN COURS DE SIGNATURE
Visites et renseignements au 0487.34.34.83
Faire offre à partir de 329 000€.
(taux à 3% possible dès maintenant, pour les primo acquéreurs).
Belle villa dans un quartier résidentiel, 3 chambres, cuisine super équipée avec frigo américain, véranda, magnifique jardin, deux garages et 22 panneaux.
CARACTERISTIQUES :
- Toiture en tuiles.
- Châssis DV PVC.
- Climatisation réversible x 2.
- Accumulateur électrique.
- 22 panneaux photovoltaïque.
- Boiler électrique.
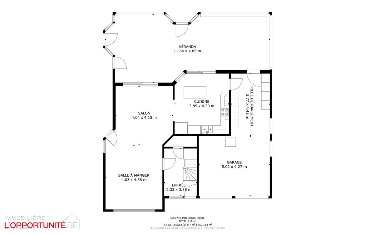
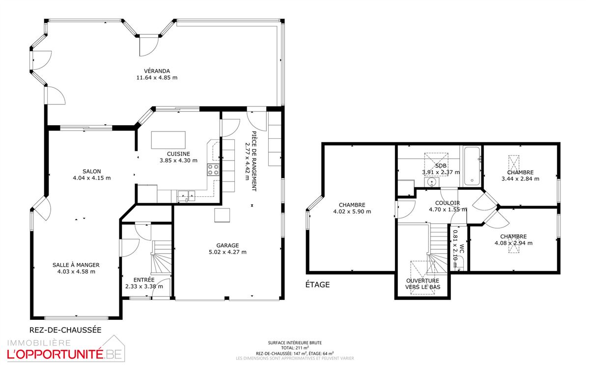
COMPOSITION :
- Garage de +/- 22m².
REZ DE CHAUSSEE :
- Hall d'entrée +/- 8m².
- Wc séparé + lavabo de +/- 2m².
- Living de +/- 36m².
- Cuisine de +/- 17m².
- Buanderie + rangement de +/- 12m².
- Véranda de +/- 45m².
1° ETAGE :
- Hall de nuit de +/- 6m².
- 3 chambres de +/- 21, 12 et 10m².
- Salle de bains avec lavabo, douche et baignoire de +/- 6m².
- Wc séparé de +/- 2m².
.png?format=webp&width=1920&height=auto)































