VISITES ET RENSEIGNEMENTS AU 0487.34.34.83
Vidéo 3D : https://youtu.be/humQyEG_n7w
Magnifique maison rénovée deux chambres et beau jardin. Électricité conforme 2044 et 12 panneaux photovoltaïques. Servitude de passage inutilisée par les voisins.
Faire offre à partir de 219.000€.
CARACTERISTIQUES :
- Châssis DV PVC.
- Chauffage central au gaz.
- Chaudière Vaillant.
- Une climatisation réversible (2023).
- 12 panneaux photovoltaïques.
- Volets manuels + moustiquaires.
- Couverture toiture en tuiles.
- Citerne d'eau + groupe hydro.
- Chalet métallique.
COMPOSITION :
- Caves de +/- 10m².
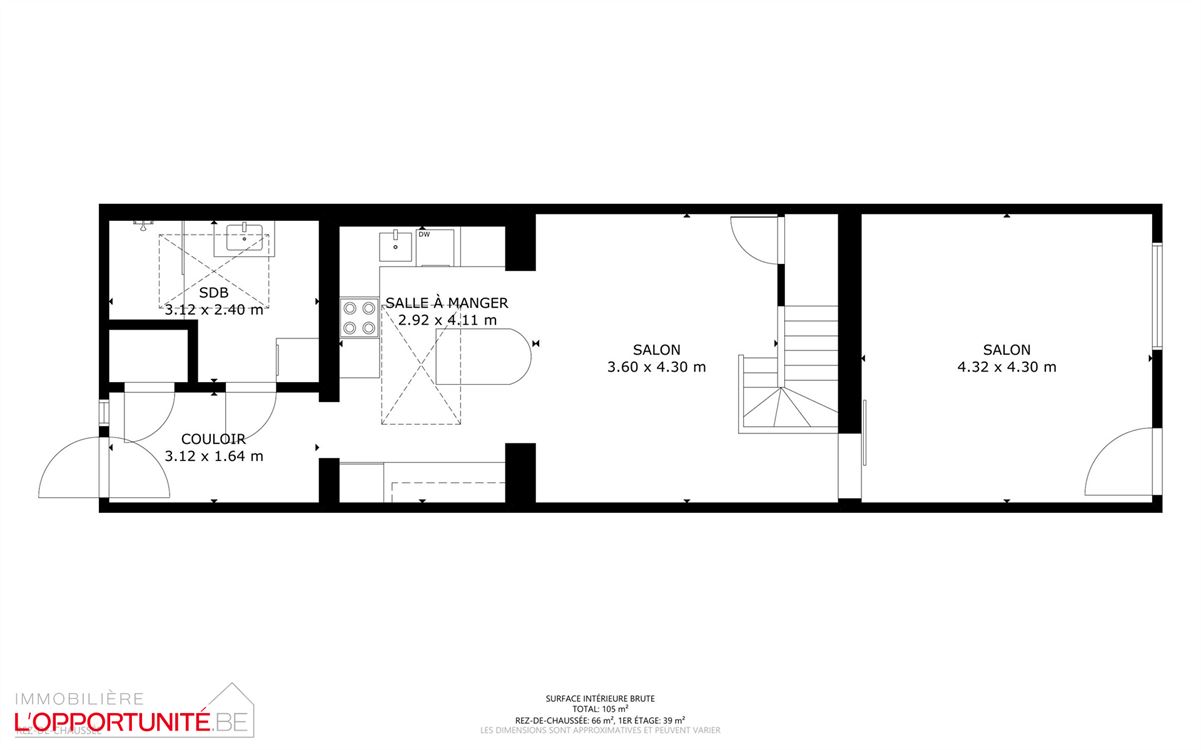
REZ DE CHAUSSEE :
- Salle à manger de +/- 17m².
- Salon de +/- 12m².
- Cuisine équipée sauf frigo de +/- 12m².
- Hall de +/- 5m².
- Salle de douches avec douche italienne et lavabo de +/- 6m².
- Wc + lavabo de +/- 2m².
- Terrasse de +/- 17m².
1° ETAGE :
- Hall de nuit de +/- 1m².
- Une chambre avec baignoire wc et lavabo de +/- 19m².
- Une chambre de +/- 16m².
2° ETAGE :
- Grenier aménageable de +/- 35m².
.png?format=webp&width=1920&height=auto)





























