SOUS OPTION - COMPROMIS EN COURS DE SIGNATURE
VISITES ET RENSEIGNEMENTS AU 0485.87.24.87
VIDEO 3D : https://youtu.be/MpBeQq5uxoc
Belle maison rénovée 3 façades, 3 chambres, bureau, terrasse et jardin.
Faire offre à partir de 170.000€.
CARACTERISTIQUES :
- Châssis DV BOIS.
- Toiture tuiles.
- Chauffage central gaz.
- Chaudière Viessmann 2021.
COMPOSITION SOUS-SOL :
- Couloir de +/- 11m².
- Buanderie de +/- 6m².
- Caves +/- 40m².
- Salle de bains avec baignoire, douche, wc et double vasque de +/- 10m².
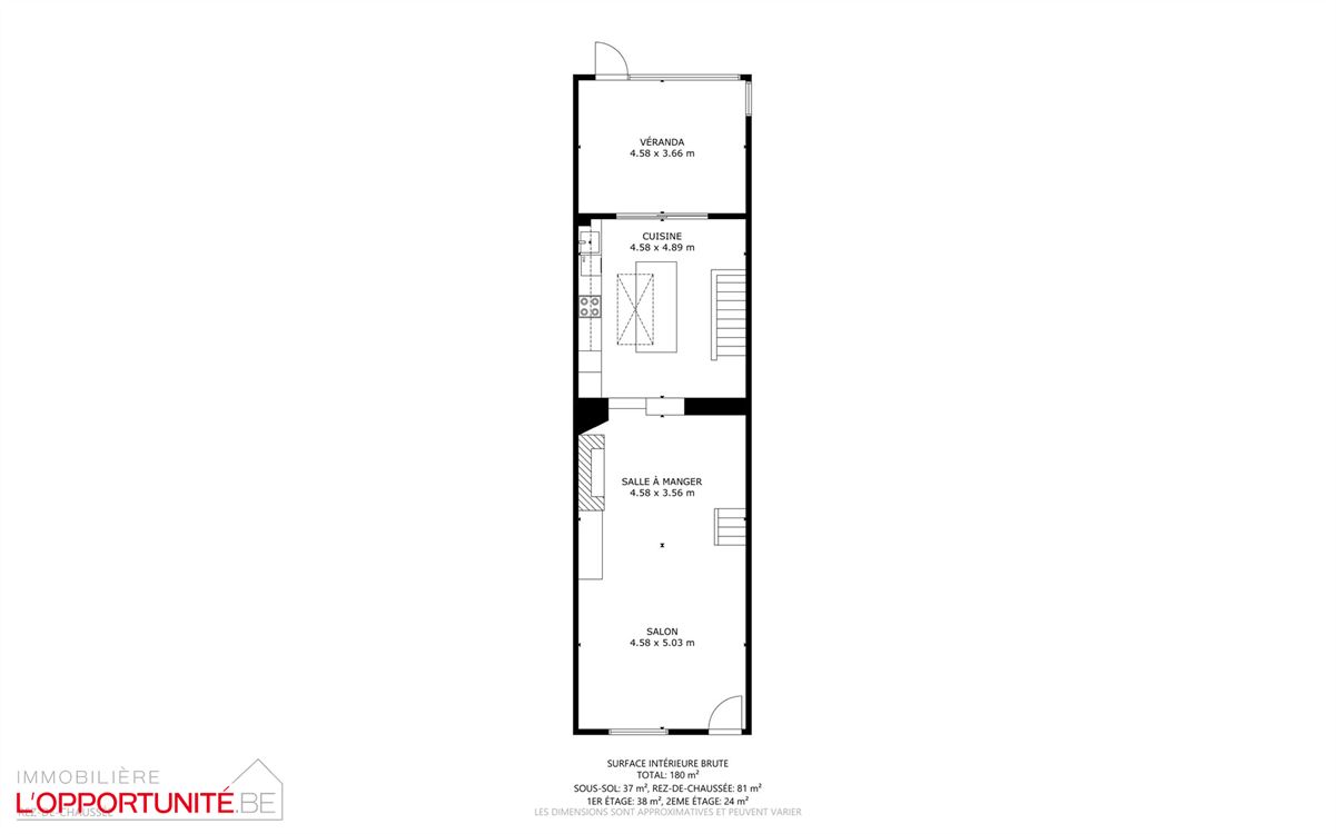
REZ DE CHAUSSEE :
- Living de +/- 37m².
- Cuisine équipée de +/- 22m².
- Véranda de +/- 18m².
1° ETAGE :
- Hall de nuit de +/- 6m².
- Deux chambres de +/- 12 et 10m².
- Bureau de +/- 6m².
2° ETAGE :
- Chambre de +/- 21m².
.png?format=webp&width=1920&height=auto)
































