SOUS OPTION - COMPROMIS EN COURS DE SIGNATURE
Visites et renseignements au 0485.87.24.87
VIDEO 3D : https://youtu.be/K0X0Hj6EvCo
Magnifique maison rénovée trois chambres, elec conforme 2042, terrasse et jardinet.
Faire offre à partir de 219 000€.
CARACTERISTIQUES :
- Rénovation complète en 2017.
- Louée actuellement 700€/mois.
- Châssis DV PVC 2018 + volets manuels.
- Toiture avec couverture en tuiles de +/- 1997.
- Chauffage central au gaz.
- Chaudière Vaillant.
- Une climatisation (uniquement froid) à l'étage.
- Palissade en béton privative.
COMPOSITION :
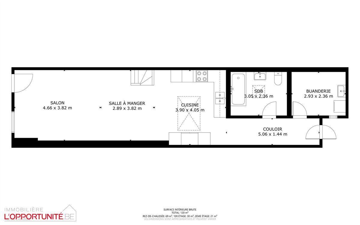
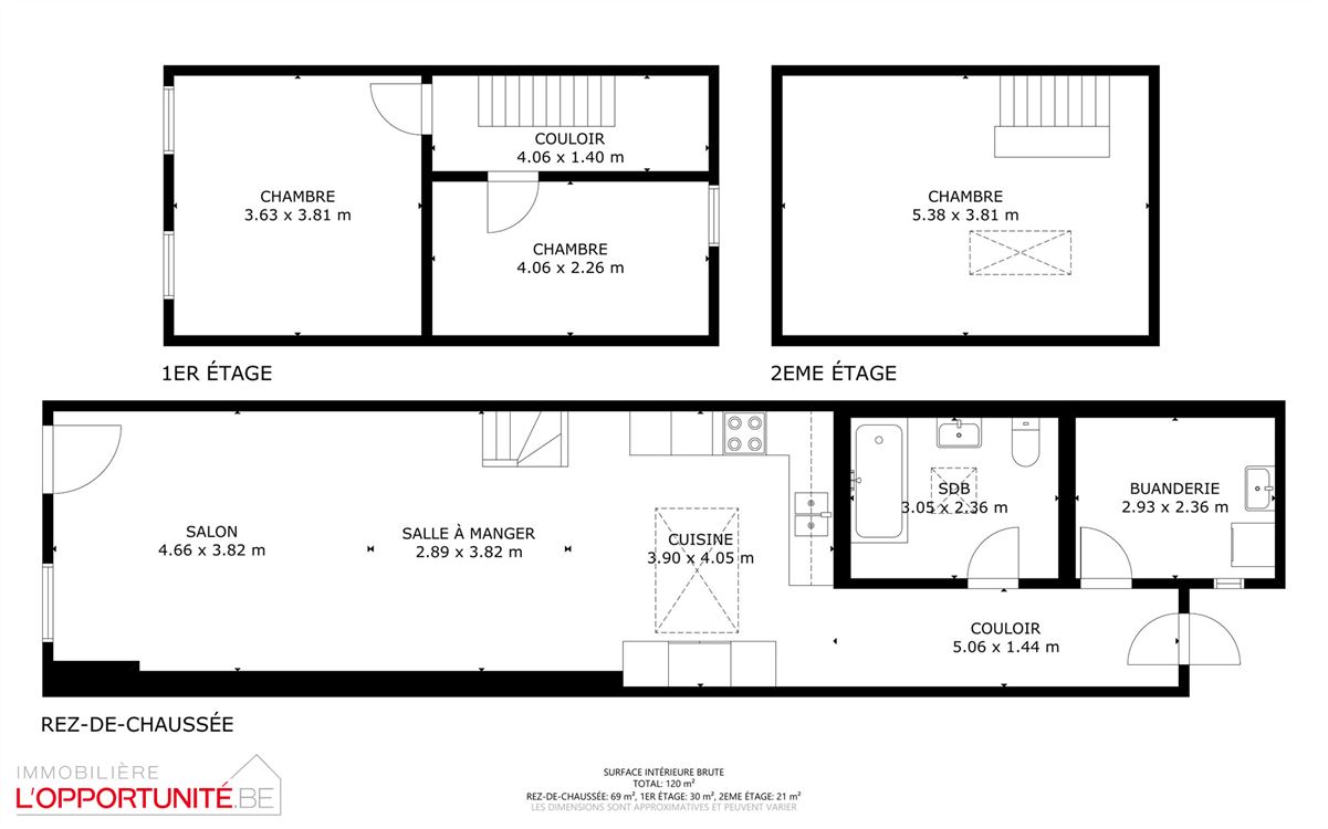
REZ DE CHAUSSEE :
- Living/Cuisine de +/- 43m².
- Hall de +/- 7m².
- Salle de bains avec baignoire, lavabo et wc de +/- 7m².
- Buanderie de +/- 7m².
- Terrasse de +/- 15m².
- Jardinet de +/- 30m².
1° ETAGE :
- Hall de nuit de +/- 6m².
- Deux chambres de +/- 14 et 9m².
2° ETAGE :
- Une chambre de +/- 18m².
.png?format=webp&width=1920&height=auto)




























