Visites et renseignements au 0487/34 34 83
Magnifique maison entièrement rénovée, 3 chambres, terrasse. Garage en option 20.000. PAS DE JARDIN.
FAIRE OFFRE A PARTIR DE 239.000€
CARACTERISTIQUES :
- Rénovation 2025.
- Toiture en tuiles.
- Châssis DV PVC.
- Chauffage central gaz, chaudière Vaillant.
- Alarme.
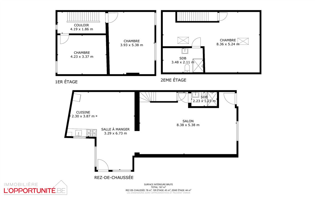
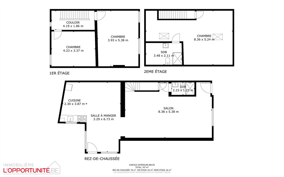
COMPOSITION :
- Caves de +/- 25m².
REZ DE CHAUSSEE :
- Hall d'entrée +/- 2m².
- Living de +/- 34m².
- Cuisine de +/- 32m².
- Salon de +/- 33m².
- Terrasse de +/- 24m².
- Salle de douches avec lavabo et wc de +/- 3m².
1° ETAGE :
- Hall de nuit de +/- 6m².
- Deux chambres de +/- 22 et 14m².
2° ETAGE :
- Chambre de +/- 32m².
- Salle de douches avec lavabo, wc et douche italienne de +/- 8m².
.png?format=webp&width=1920&height=auto)



























