https://youtu.be/8vIVLTAbf_A
Faire offre à partir de 179 000€
CARACTERISTIQUES :
- Châssis DV PVC.
- Poêle aux pellets.
- Balcon (1.19 X 4.06).
- PEB D.
- PAS DE JARDIN.
COMPOSITION MAISON :
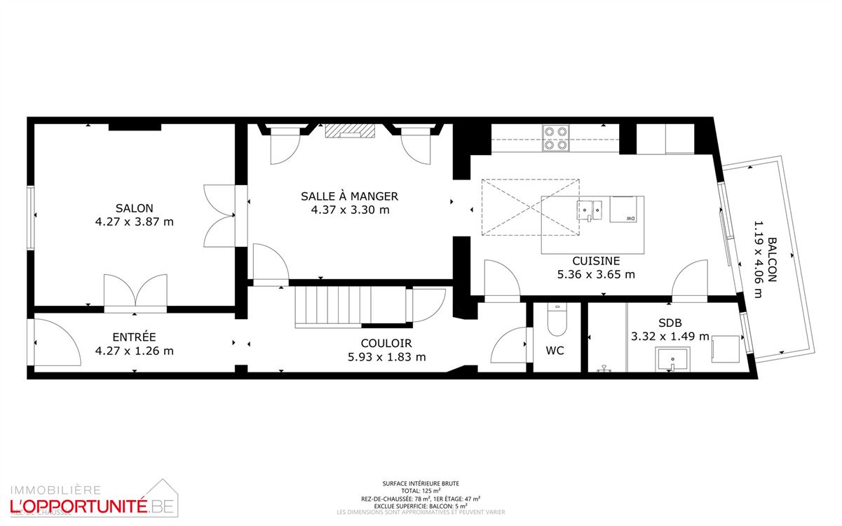
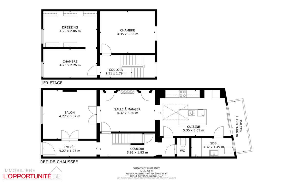
Cave
REZ DE CHAUSSEE :
- Hall d'entrée (4.27 X 3.87) - (5.93 X 1.83).
- Salon (4.27 X 3.87).
- Salle à manger (4.37 X 3.30).
- Cuisine full équipée (5.36 X 3.65) (Taque induction, lave vaisselle, four).
- Salle de bain (3.32 X 1.49) (Lavabo, douche).
AU 1°ETAGE:
- Hall de nuit (2.51 X 1.79).
- 3 chambres (4.25 X 2.26) - (4.25X 2.86) - (4.35 X 3.33).
AU 2°ETAGE:
- Grenier aménageable.
.png?format=webp&width=1920&height=auto)


























