SOUS OPTION - COMPROMIS EN COURS DE SIGNATURE
VISITES ET RENSEIGNEMENTS AU 0487.34.34.83
VIDEO 3D : https://youtu.be/MsXxol97ASM
Magnifique maison rénovée, 3 chambres, PEB C, élec conforme, 2 clim réversibles. beau jardin et passage latéral.
Faire offre à partir de 270.000€.
CARACTERISTIQUES :
- Contrôle électrique conforme jusqu'en 2028.
- Châssis DV BOIS (AV) et DV PVC (AR).
- Toiture en ardoises.
- Chauffage central mazout, chaudière de 1996 + boiler.
- Cuve mazout de +/- 2500L.
- Pellet.
- Adoucisseur.
- Citerne d'eau + groupe hydro.
- Fosse sceptique + égout.
COMPOSITION :
- Garage +/- 16m².
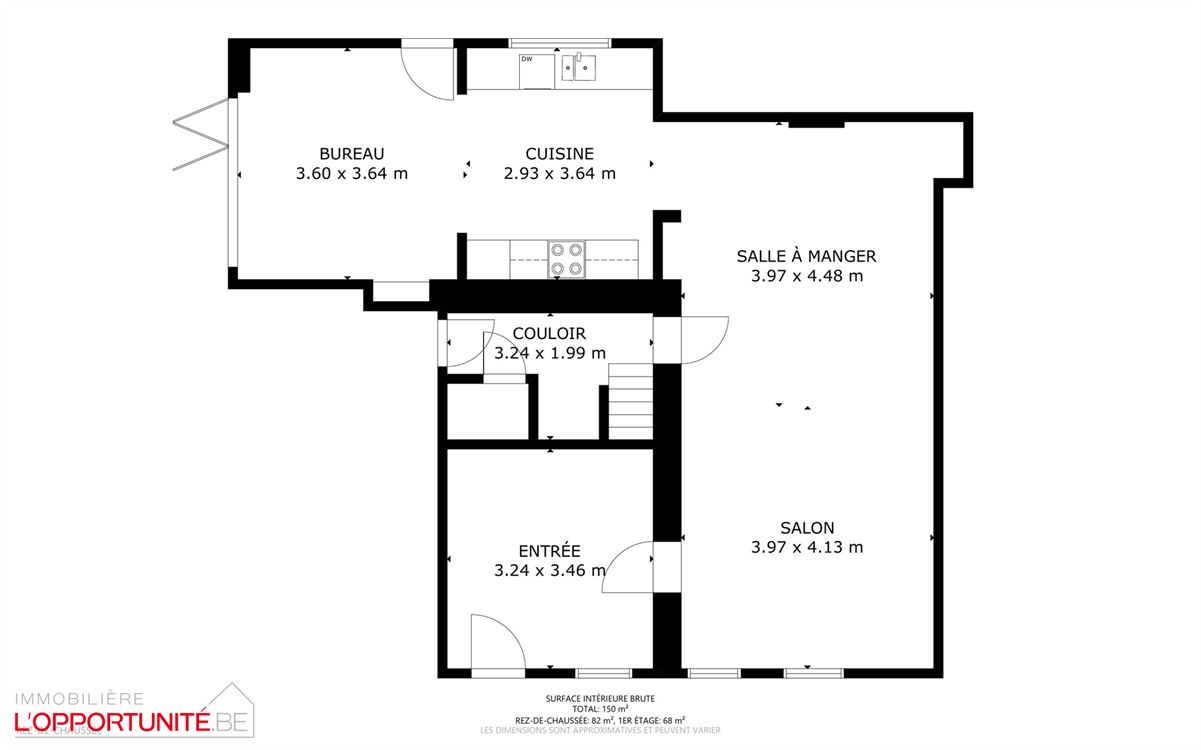
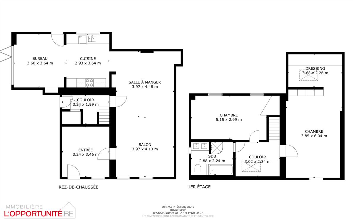
REZ DE CHAUSSEE :
- Hall d'entrée de +/- 12m².
- Living de +/- 34m².
- Cuisine équipée de +/- 24m².
- Couloir de +/- 4m².
- Wc séparé + lavabo de +/- 2m².
1° ETAGE :
- Hall de nuit de +/- 7m².
- Deux chambres de +/- 32 et 15m² (possibilité de diviser la chambre de 32m²).
- Salle de bains avec baignoire, douche, wc et double vasque de +/- 7m².
2° ETAGE :
- Grenier de stockage de +/- 15m².
.png?format=webp&width=1920&height=auto)






























