SOUS OPTION - COMPROMIS EN COURS DE SIGNATURE
Visites et renseignements au 0487/34 34 83
Belle maison deux chambres, garage et beau jardin. Passage mitoyen avec servitude de passage.
Faire offre à partir de 129 000€.
CARACTERISTIQUES :
- Châssis DV ALU.
- Chauffage par poêle au mazout (3).
- Couverture toiture en tuiles.
- Garage de +/- 20m².
COMPOSITION :
SOUS -SOL :
- Caves de +/- 15m² .
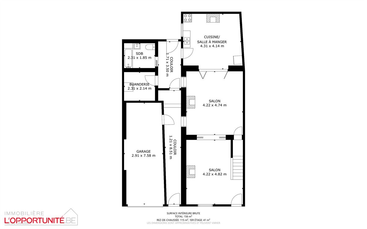
REZ DE CHAUSSEE :
- Salon de +/- 15m².
- Salle à manger de +/- 21m².
- Cuisine de +/- 18m².
- Patio de +/- 6m².
- Buanderie de +/- 4m².
- Salle de bains avec baignoire, lavabo et wc de +/- 5m².
- Atelier de +/- 11m².
- Terrasse de +/- 14m².
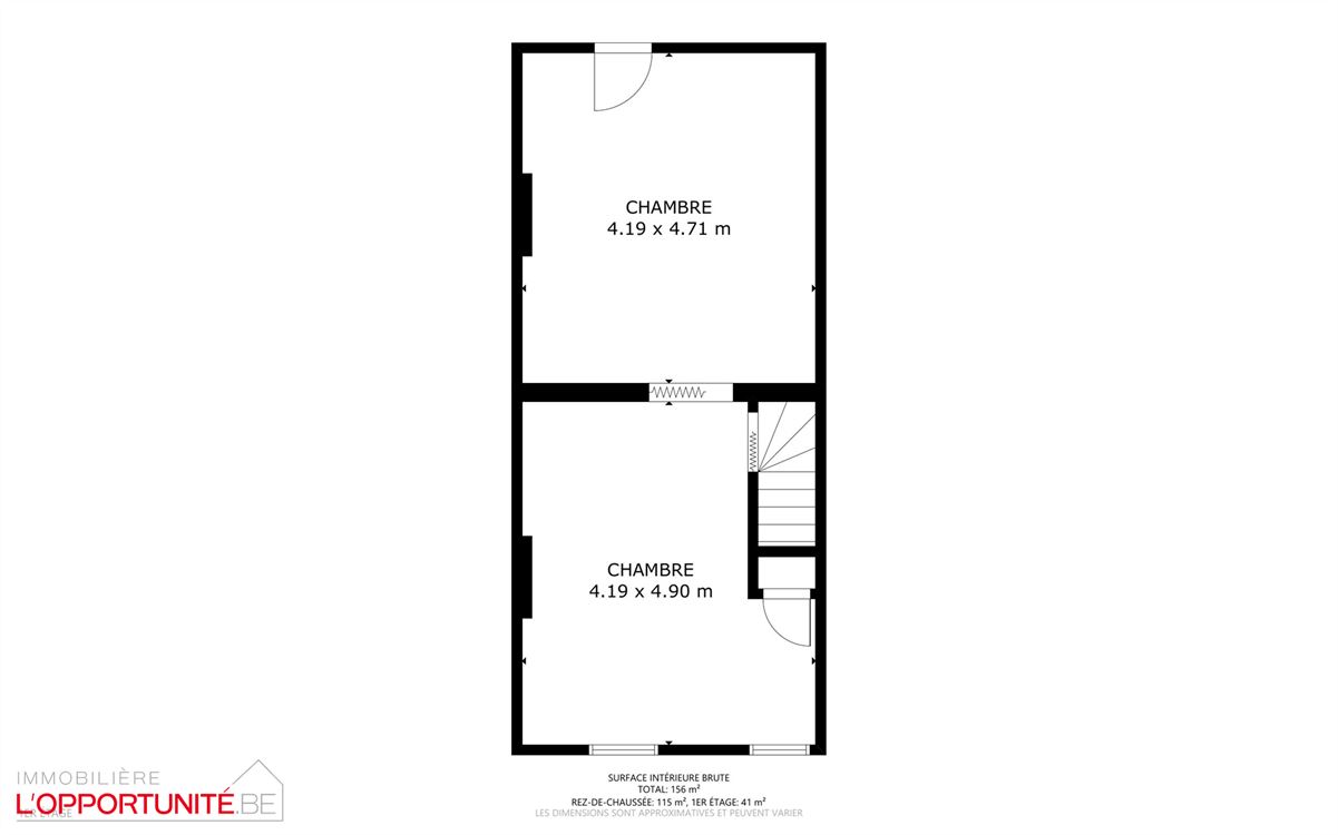
1° ETAGE :
- 2 chambres de +/- 20 et 17m².
2° ETAGE :
- Grenier de +/- 40m².
.png?format=webp&width=1920&height=auto)



























