SOUS OPTION - COMPROMIS EN COURS DE SIGNATURE
Visites et renseignements au 0487/34 34 83
Vidéo 3D : https://youtu.be/bhCvYKLGtkQ
Splendide maison entièrement rénovée trois chambres, avec grande terrasse, parking, garage et studio totalement indépendant loué 700€/mois charges comprises
(sous le régime de la colocation).
Faire offre à partir de 270.000€.
CARACTERISTIQUES :
- Installation électrique conforme jusqu'en 2049.
- Châssis DV BOIS.
- Chauffage central mazout.
- Chaudière Ferroli.
- Climatisation réversible.
- Tuiles de +/- 2020.
- Studio chauffage par poêle à pellet.
COMPOSITION :
- Caves de +/- 40m².
- Garage de +/- 55m².
- Terrasse/Parking de +/- 160m².
MAISON PRINCIPALE :
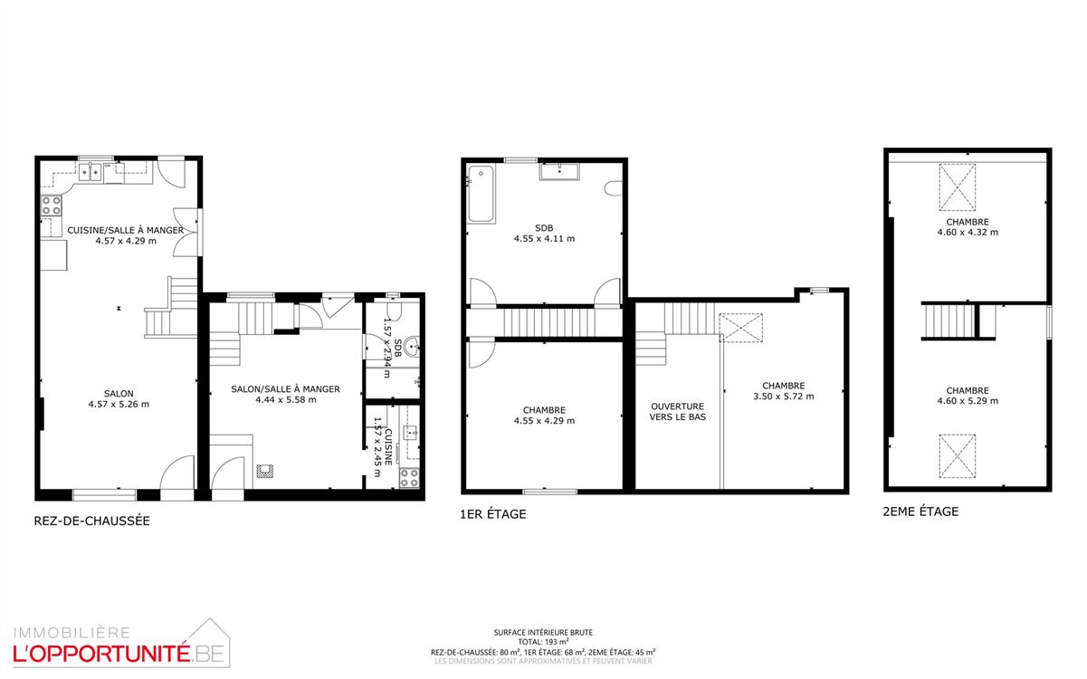
REZ DE CHAUSSEE :
- Living/Cuisine équipée frigo inclus de +/- 44m².
1° ETAGE :
- Hall de nuit de +/- 1m².
- Chambre de +/- 19m².
- Salle de bains avec baignoire, double vasque et wc de +/-19m².
2° ETAGE :
- Hall de nuit de +/- 1m².
- Deux chambres de +/- 21 et 20m².
STUDIO :
- Living de +/- 20m².
- Cuisine de +/- 4m².
- Salle de douches avec douche, lavabo et wc de +/- 5m².
- Chambre en mezzanine de +/- 19m².
.png?format=webp&width=1920&height=auto)































