SOUS OPTION - COMPROMIS EN COURS DE SIGNATURE
Visites et renseignements 0485.87.24.87
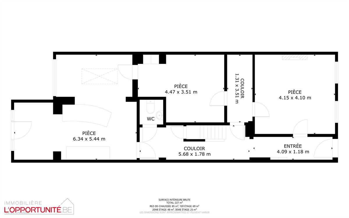
Magnifique maison d'habitation utilisée comme bureau au rdc, studio au premier et appartement duplex au deuxième. Beau jardin.
Faire offre à partir de 329 000€.
CARACTERISTIQUES :
- Châssis DV BOIS.
- Chauffage central gaz.
- Alarme.
- Couverture toiture en ardoises.
- 3 compteurs électriques.
- 1 compteur d'eau.
- 1 compteur gaz.
- Boiler électrique.
COMPOSITION :
SOUS -SOL :
- Caves de +/- 35m² .
REZ DE CHAUSSEE :
- Hall d'entrée +/- 12m².
- Wc séparé avec lavabo de +/- 2m².
- Salle d'attente de +/- 19m².
- Bureau de +/- 17m².
- Bureau de +/- 29m².
1/2° ETAGE :
- Hall de +/- 4m².
- Bureau de +/- 13m².
- Salle de douches de +/- 4m².
1° ETAGE Studio de +/- 30m² :
- Living/chambre de +/- 30m².
- Cuisine de +/- 4m².
- Salle de douches avec wc et lavabo de +/- 4m².
2° ETAGE :
- Living de +/- 30m².
- Wc séparé avec lavabo de +/- 2m².
- Cuisine équipée de +/- 6m².
- Mezzanine avec chambre de +/- 16m².
- Salle de bains avec baignoire et lavabo de +/- 4m².
.png?format=webp&width=1920&height=auto)



































