https://youtu.be/1I_6cyzGFgU
Visites et renseignements au 0490/25.98.83
Faire offre à partir de 159.000€
CARACTERISTIQUES :
- Châssis DV PVC et SV BOIS.
- Cour.
- Jardin.
- PEB E.
- Chauffage central au gaz.
- Toiture tuiles.
- Passage latérale.
- Parking 3 voitures.
- Remise
COMPOSITION MAISON :
Cave:
REZ DE CHAUSSEE :
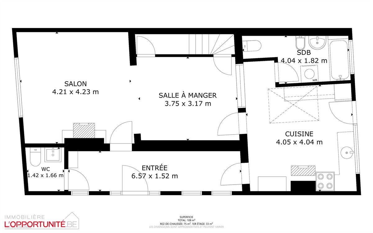
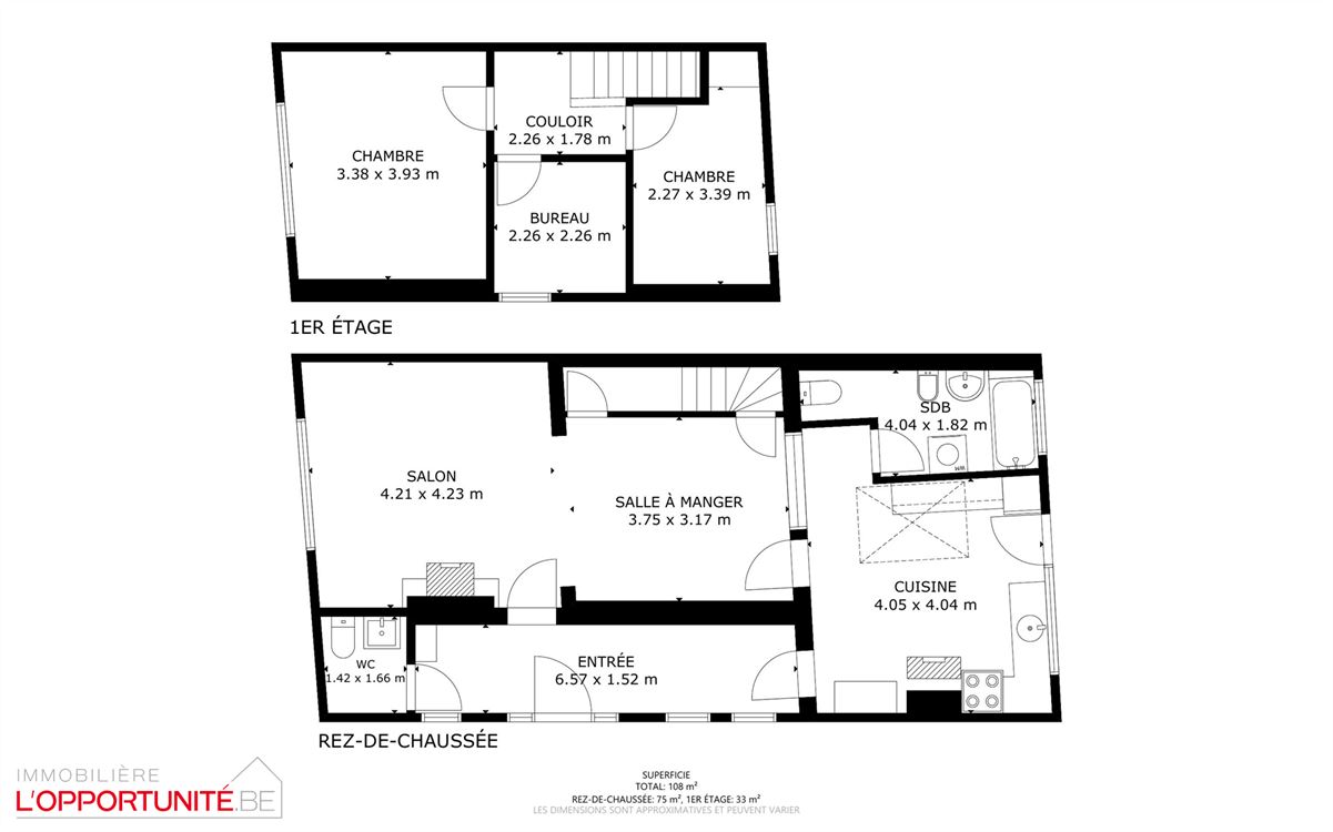
- Hall d'entrée (6.57 X 1.52).
- Salon (4.21 X 4.23).
- Salle à manger (3.75 X 3.17).
- Wc séparé avec lavabo (1.42 X 1.66).
- Cuisine (4.05 X 4.04). (frigo, four, hotte, évier).
- Salle de bain (4.04 X 1.82). (Baignoire, évier, lavabo).
AU 1°ETAGE:
- Hall de nuit (2.26 X 1.78).
- 3 chambres (3.38 X 3.93) - (2.26 X 2.26) - (2.27 X 3.39).
AU 2°ETAGE:
- Grenier
.png?format=webp&width=1920&height=auto)























