Visites et renseignements au 0487.34.34.83
Belle maison trois chambres, garage (en option) et beau jardin. Passage mitoyen avec servitude de passage.
Faire offre à partir de 119 000€ + GARAGE EN OPTION AU PRIX DE 15 000€
CARACTERISTIQUES :
- Châssis DV ALU + SV ALU + SV BOIS.
- Chauffage central mazout.
- Couverture toiture en tuiles.
- Garage une voiture inclus dans le prix.
COMPOSITION :
SOUS -SOL :
- Caves de +/- 30m² .
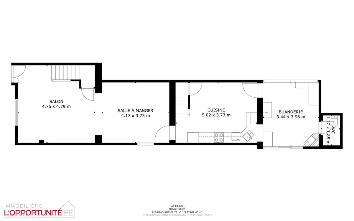
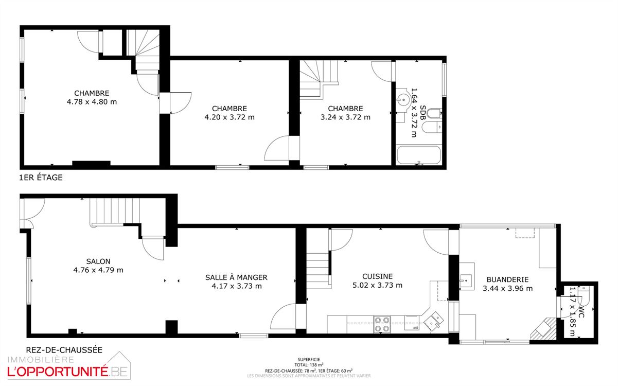
REZ DE CHAUSSEE :
- Living de +/- 44m².
- Cuisine de +/- 18m².
- Véranda de +/- 14m².
- Wc séparé de +/- 1m².
1° ETAGE :
- 3 chambres de +/- 18 et 15 et 11m² dont une passante.
- Salle de bains avec baignoire, lavabo, wc et bidet de +/- 6m².
2° ETAGE :
- Grenier de +/- 18m².
.png?format=webp&width=1920&height=auto)



























