SOUS OPTION - COMPROMIS EN COURS DE SIGNATURE
Visites et renseignements au 0487.34.34.83
Maison idéale pour colocation, entièrement rénovée, 3 chambres, terrasse. EN OPTION grand entrepôt 350m², possibilité appartement 70m².
Possibilité de louer 3 chambres en colocation 1200€/mois.
Située à 500m de la Haute Ecole Condorcet et du nouveau campus universitaire de Charleroi.
Faire offre à partir de 155.000€ - OFFRE ACTUELLE A 150 000€
CARACTERISTIQUES
- Possibilité de colocation +/- 400€/mois par chambre.
- Passage privatif.
- Chauffage central gaz.
- Chaudière condensation de +/- 2018.
- Châssis DV PVC.
- Maison, toiture arrière en tuiles de +/- 2018.
- Terrasse de +/- 20m².
- Garage de +/- 15m².
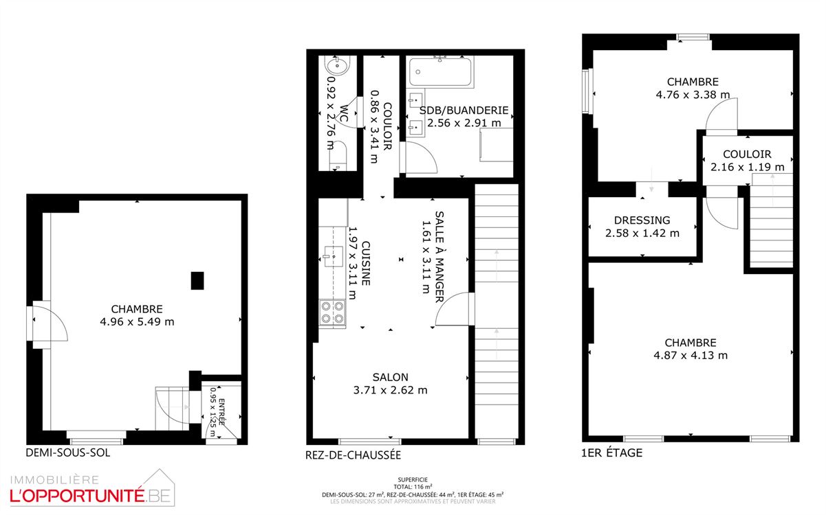
MAISON :
REZ DE CHAUSSEE :
- Hall d'entrée de +/ 1m².
- Chambre avec bureau de +/- 25m².
1° ETAGE :
- Hall de nuit de +/- 1m².
- Living/Cuisine de +/- 20m².
- Couloir de +/- 3m².
- Salle de bains, double vasque, baignoire, buanderie de +/- 8m².
- Wc séparé de +/- 3m².
2° ETAGE :
- Hall de nuit de +/- 2m².
- Chambre avec bureau de +/- 15m².
- Chambre avec bureau de +/- 22m².
ENTREPOT :
- 10 Places de parking pour un total de +/- 350m².
- 7 places de parking louées +/- 50€/mois/emplacement.
POSSIBILITE APPARTEMENT de 70m² au dessus de l'entrepôt :
- Living, cuisine, une chambre, salle de douches.
.png?format=webp&width=1920&height=auto)






























