Visites et renseignements au 0490/25.98.83
SOUS OPTION - COMPROMIS EN COURS DE SIGNATURE
Lien vers vidéo en 3D : https://www.youtube.com/watch?v=Trewo3KCICQ
FAIRE OFFRE A PARTIR DE 199 000 euros.
CARACTERISTIQUES
- Chauffage central au mazout.( Chaudière récente).
- Châssis DV PVC.
- Toiture ardoises artificielles isolée. ( Toiture récente).
- Jardin.
- PEB D.
- Electricité conforme.
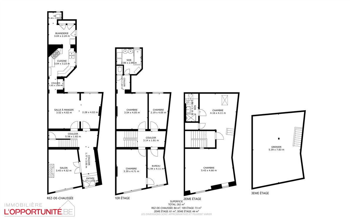
COMPOSITION Cave:
REZ DE CHAUSSEE
- Hall d'entrée (1.77 X 1.43).
- Couloir (1.77 X 3.05) - (5.58 X 1.82).
- Salon (3.45 X 4.52).
- Salle à manger (2.28 X 4.02) + (3.52 X 4.02).
- Hall (1.65 X 1.21).
- Cuisine (3.04 X 3.23).
- Buanderie (3.04 X 2.24).
- Wc séparé (1.48 X 1.25).
1° ETAGE:
- Hall de nuit (3.14 X 1.81) - (1.54 X 1.64).
- 3 Chambres (3.54 X 4.05) - (2.19 X 4.05) - (3.39 X 4.71) - (1.94 X 4.11).
- Salle de bains (1.30 X 3.16). (baignoire, évier double vasque).
- WC séparé.
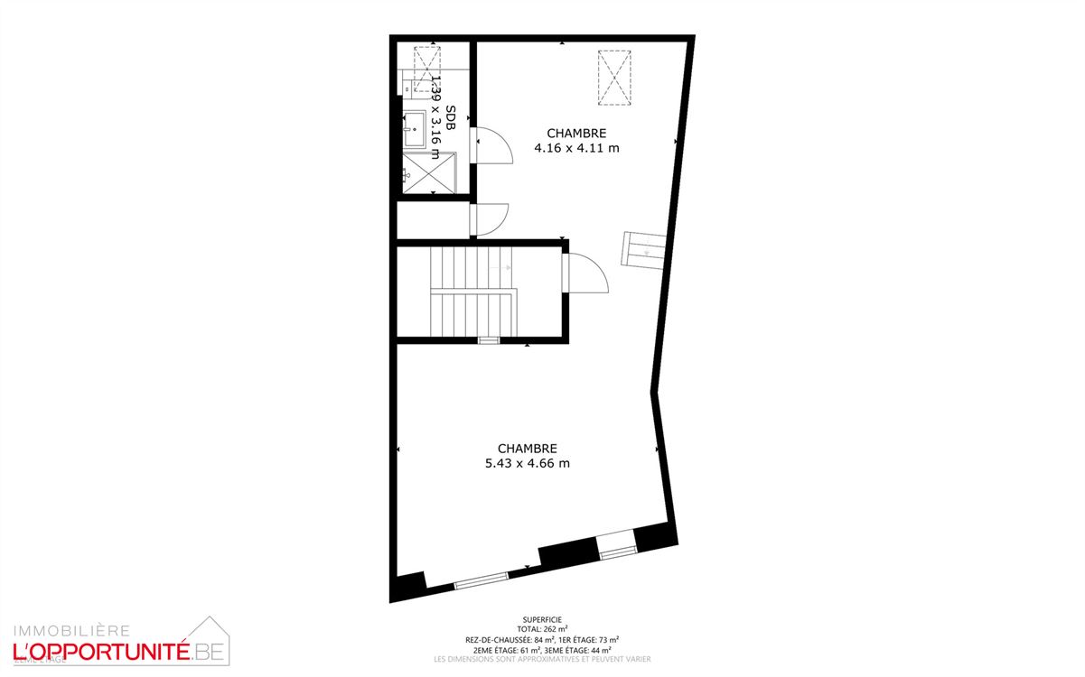
2 ° ETAGE:
- 2 chambres (4.16 X 4.11) - (5.43 X 4.66).
- Salle de douche ( 2.86 X 2.89). (Douche et lavabo, wc).
3 ° ETAGE:
- Grenier aménagé (5.39 X 7.83).
.png?format=webp&width=1920&height=auto)



































