VISITES ET RENSEIGNEMENTS AU 0487.34.34.83
VIDEO 3D : https://youtu.be/VQMKjTOmf3c
FAIRE OFFRE A PARTIR DE 199 000€.
Magnifique maison deux chambres, grenier aménageable, terrasse et beau jardin.
CARACTERISTIQUES :
- Châssis DV PVC (2022).
- Volets manuels.
- Chauffage central au gaz.
- Couverture de la toiture en ardoises.
COMPOSITION :
- Possibilité de garage en location pour 25€/mois.
- Chalet de +/- 10m².
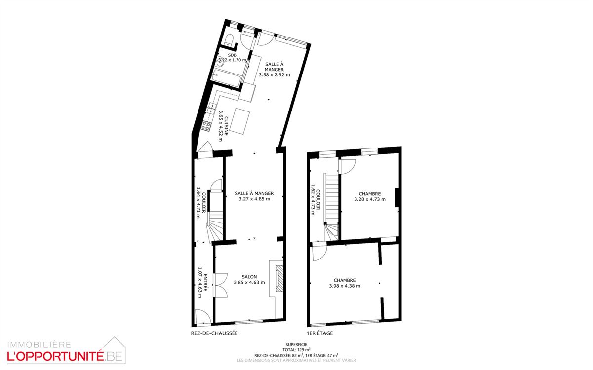
REZ DE CHAUSSEE :
- Hall d'entrée de +/- 10m².
- Salon de +/- 16m².
- Salle à manger de +/- 15m².
- Cuisine de +/- 25m².
- Salle de bains avec baignoire et lavabo de +/- 5m².
- Wc séparé de +/- 1m².
1° ETAGE :
- Hall de nuit de +/- 5m².
- Deux chambres de +/- 21 et 15m².
2° ETAGE :
- Grenier aménageable de +/- 40m².
.png?format=webp&width=1920&height=auto)




























