SOUS OPTION - COMPROMIS EN COURS
VISITES ET RENSEIGNEMENTS AU 0487/34 34 83
Magnifique appartement situé au 2ème étage, 2 chambres avec terrasse et parking intérieur.
Faire offre à partir de 249 000€
(N'hésitez pas cliquer sur l'onglet VISITE VIRTUELLE SUR www.lopportunite.be)
CARACTERISTIQUES :
- Construction récente 2016, PEB A+.
- Appartement deux chambres.
- Situé au 2ème étage.
- Chauffage par le sol.
- Pompe à chaleur Daikin.
- Châssis DV PVC.
- Ventilation double flux.
- 2 panneaux solaires.
- Porte blindée.
- Parlophone.
- 122€/mois fond de roulement.
- 23€/mois fond de réserve.
- A proximité du centre, des grands axes, des commerces.
- Libre à partir du 1er mai 2021.
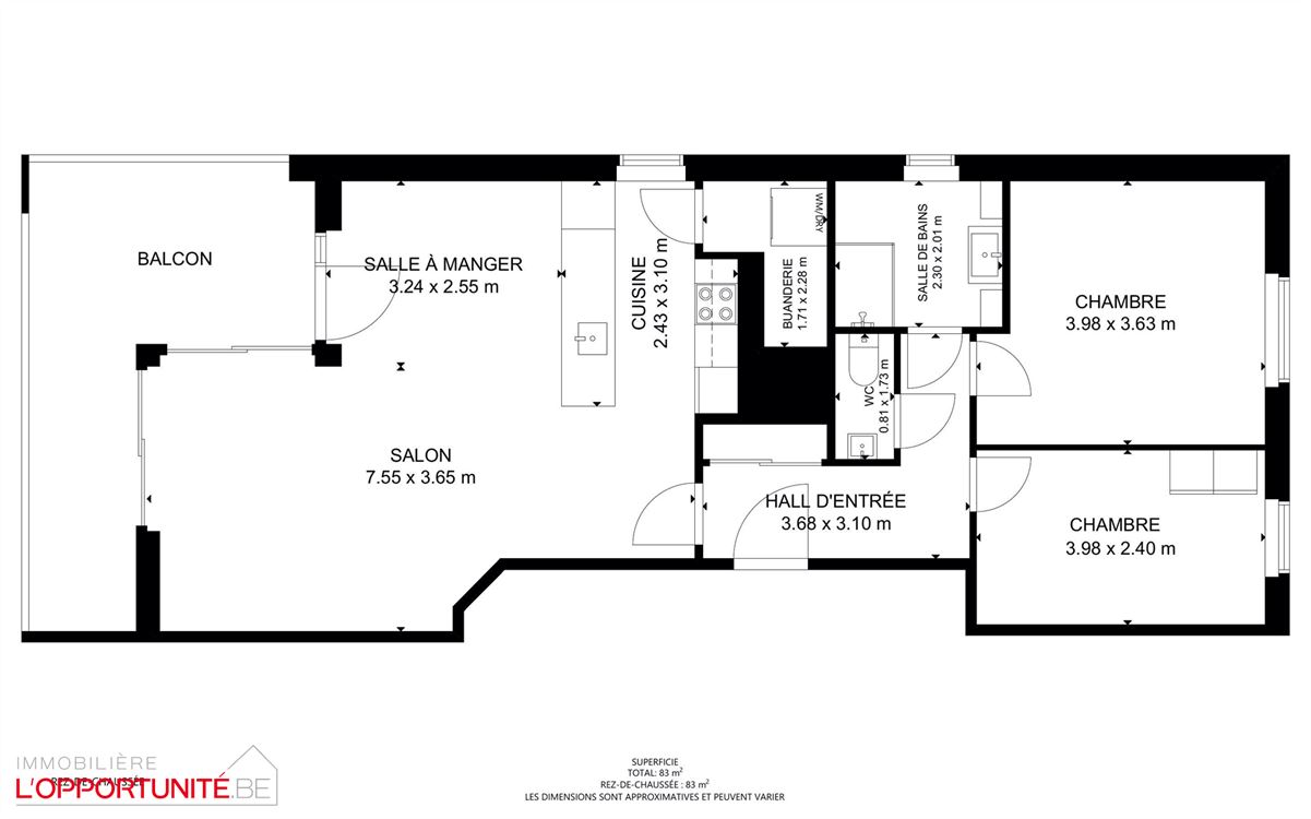
COMPOSITION :
- Hall + couloir de +/- 7m².
- Vestiaire de +/- 2m².
- Living/cuisine de +/- 39m².
- Buanderie et chaufferie de +/- 2m².
- Wc séparé de +/- 2m².
- Deux chambres de +/- 13 et 10m².
- Salle de douches, lavabo, douche italienne de +/- 5m².
1 place de parking intérieur et 1 cave de +/- 5m².
.png?format=webp&width=1920&height=auto)


















