SOUS OPTION - COMPROMIS EN COURS
VISITES ET RENSEIGNEMENTS AU 0487/34 34 83
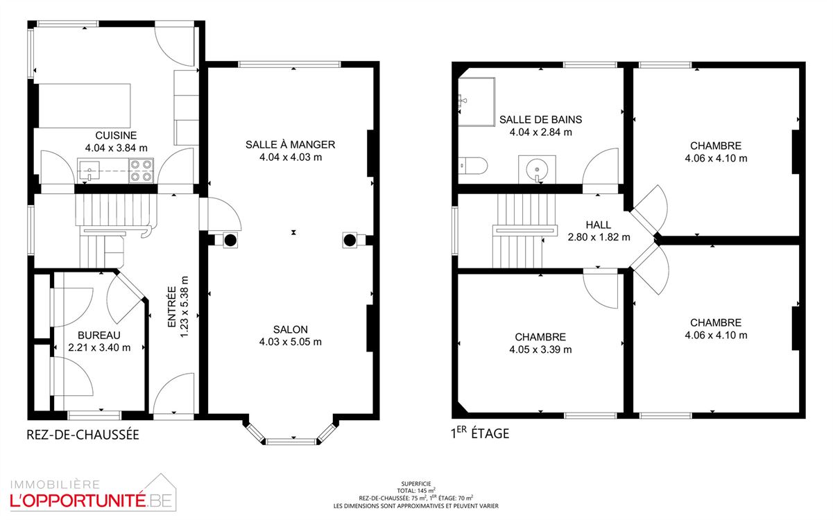
Belle maison de maitre, 3 chambres, magnifique jardin, carport 2 voitures.
FAIRE OFFRE A PARTIR DE 239.000€
CARACTERISTIQUES:
- Maison 4 façades de 1930.
- Idéal pour profession libérale.
- Toiture en tuiles.
- Châssis DV PVC.
- Chauffage central gaz.
- Beau jardin arboré et sécurisé.
- Volets manuels.
COMPOSITION:
SOUS -SOL:
- Caves de +/- 64m².
REZ DE CHAUSSEE:
- Hall d'entrée de +/- 6m².
- Bureau de +/- 8m².
- Wc séparé et lavabo de +/- 1m².
- Cuisine de +/- 15m².
- Living de +/- 34m².
- Carport 2 voitures.
1° ETAGE:
- Hall de nuit de +/- 4m².
- Salle de douches avec lavabo, wc, douche de +/- 13m².
- 3 chambres de +/- 18 - 17 et 14m².
2° ETAGE:
- Grenier de +/- 25m².
.png?format=webp&width=1920&height=auto)
























