SOUS OPTION - COMPROMIS EN COURS DE SIGNATURE
Faire offre à partir de 339 000€
CARACTERISTIQUES
- TB Maison 4 façades de caractère en pierre du pays.
- Chauffage central au mazout.
- Châssis DV BOIS.
- Toiture ardoises.
- 2 garages.
- Parking extérieur.
- Climatisation dans la chambre parentale.
- Le bien comporte 4 WC au total.
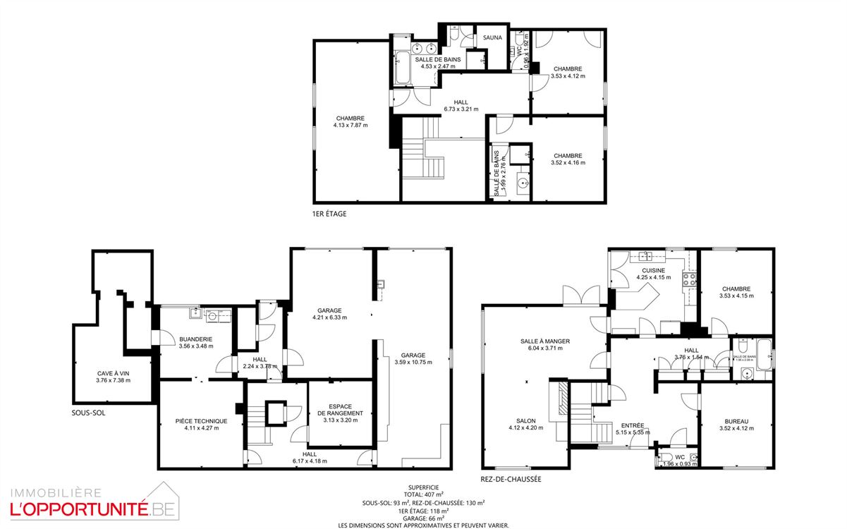
COMPOSITION caves
- Double hall.
- Espace de rangement.
- Pièce technique.
- Buanderie.
- Cave à vin
REZ DE CHAUSSEE
- Hall d'entrée (5.15 X 5.35) - (3.76 X 1.54)
- Cuisine équipée (4.25 X 4.15).
- 1 chambre (3.53 X 4.15).
- Salle à manger (6.04X 3.71).
- Salon (4.12 X 4.2).
- Un wc séparé (1.96 X 0.93).
1° ETAGE:
- Hall de nuit (6.73 X 3.21).
- Salle de bains ( baignoire, double vasque, sauna). (4.53 X 2.47).
- 3 chambres (4.13 X 7.87) - (3.53 X 4.12) - (3.52 X 4.16).
- Salle de douches (1.99 X 2.76).
Terrasse et jardin arboré (abris de jardin)
.png?format=webp&width=1920&height=auto)











































