SOUS OPTION - COMPROMIS EN COURS
Faire offre à partir de 449.000€.
Construction 2015 sur 11 ares 40, 6 chambres, situation exceptionnelle, panneaux photovoltaïques.
CARACTERISTIQUES
- Idéal pour profession libérale.
- 12 Panneaux photovoltaïques.
- Chauffage par le sol (pompe à chaleur).
- Châssis DV PVC.
- Ventilation simple flux (Renson).
- Citerne d'eau de 7000l avec groupe hydro.
- Compteur bi-horaire.
- Station d'épuration.
- Electricité conforme (Rapport consultable sur notre site).
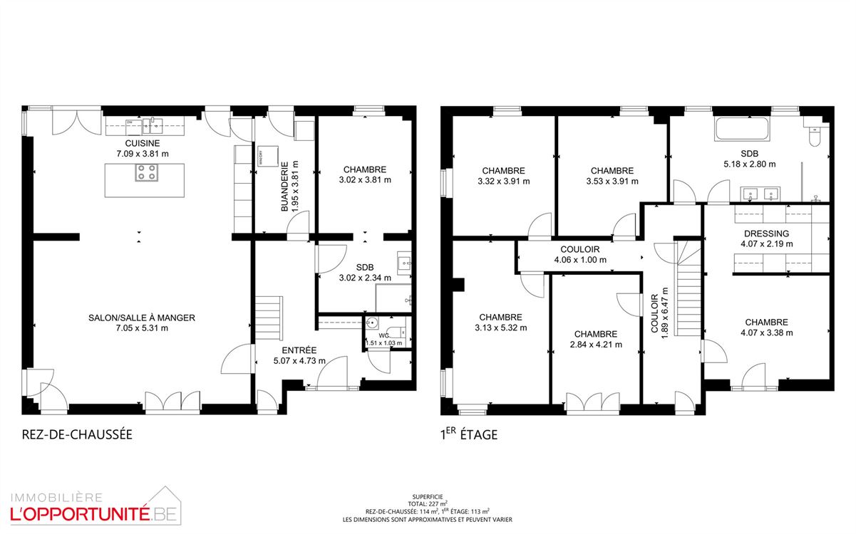
COMPOSITION
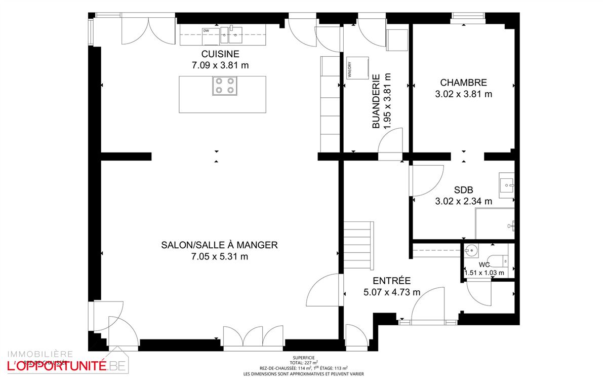
REZ DE CHAUSSEE
- Hall d'entrée + couloir de +/- 13m².
- Living/cuisine full équipée (Ixina) de +/- 65m².
- Wc séparé + lavabo de +/- 2m².
- Buanderie de +/- 7m².
- Salle de douches avec douche et lavabo de +/- 7m².
- Chambre de +/- 12m².
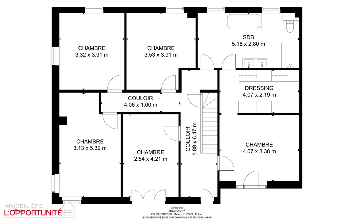
1° ETAGE:
- Hall de nuit de +/- 13m².
- 5 chambres de +/- 15, 14, 14, 13 et 12m².
- Dressing de +/- 9m².
- Salle de bains avec baignoire, wc, double vasques, douche de +/- 14m².
2° ETAGE:
- Grenier de +/- 52m².
.png?format=webp&width=1920&height=auto)























