SOUS OPTION - COMPROMIS EN COURS DE SIGNATURE
MAISON AVEC 3 GARAGES !!!!
VISITES ET RENSEIGNEMENTS AU 0490/25.98.83
FAIRE OFFRE A PARTIR DE 179 000 EUROS.
CARACTERISTIQUES
- Chauffage central au mazout.
- Châssis DV PVC.
- Toiture tuiles. ( Toiture récente).
- Jardin.
- PEB E.
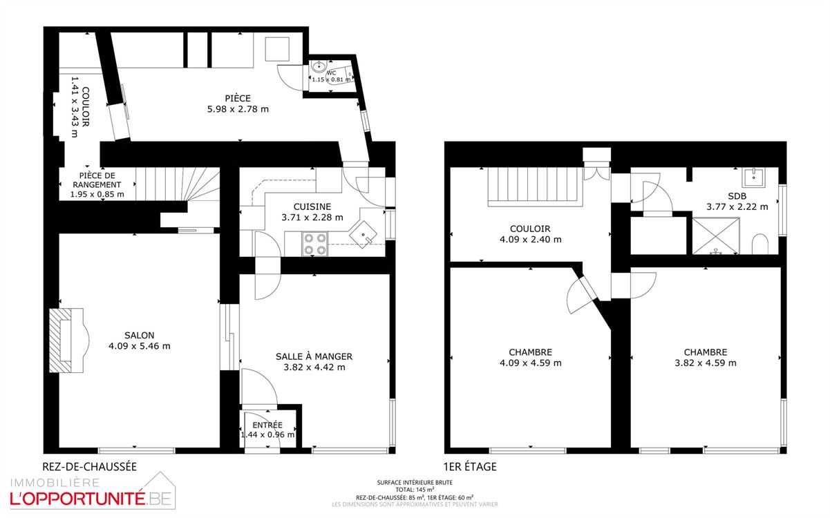
COMPOSITION Cave:
REZ DE CHAUSSEE
- Hall d'entrée (1.44 X 0.96).
- Salle à manger (3.82 X 4.42).
- Salon (4.09 X 5.46).
- Cuisine semi équipée ( taque vitro, four,...) (3.71 X 2.28).
- Pièce de rangement (1.95 X 0.85).
- Couloir (1.41 X 3.43).
- Buanderie (5.98 X 2.78).
- Wc (1.15 X 0.81).
1° ETAGE:
- Hall de nuit (4.09 X 2.4).
- 2 Chambres (4.09 X 4.59) - (3.82 X 4.59).
- Salle de bains (1.30 X 3.16). (baignoire, évier double vasque).
- WC séparé.
2 ° ETAGE:
- Grenier de rangement accès par une trappe.
.png?format=webp&width=1920&height=auto)



























