SOUS OPTION - COMPROMIS EN COURS
VISITES ET RENSEIGNEMENTS AU 0487/34 34 83
Bel immeuble de rapport composé d'un rdc commercial, 4 appartements, 2 studios.
Prix demandé 365.000€
CARACTERISTIQUES
- Revenu locatif actuel : +/- 2 428€ + un des studios qui est actuellement libre d'occupation.
- Toiture en ardoise.
- Châssis DV BOIS.
- Chauffage par poêle au gaz.
- 4 Compteurs séparés.
- Chauffage électrique.
- 7 compteurs électriques existants.
- 6 compteurs d'eau.
- Immeuble actuellement occupé.
COMPOSITION
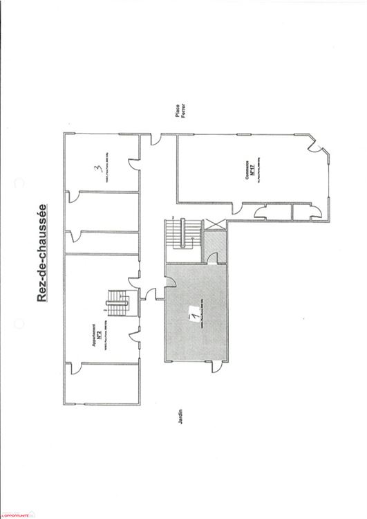
REZ DE CHAUSSEE.
- Commerce avec entrée indépendante avec wc séparé +/- 50m².
- Loué 400€/mois.
- Hall d'entrée de +/- 4m².
- Appartement duplex 2 chambres +/- 62m².
- Hall d'entrée de +/- 2m².
- Living de +/- 29m².
- Sdb de +/- 6m².
- A l'étage :
- 2 chambres de +/- 13 et 12m².
- Loué 494€/mois.
- Studio avec wc séparé de +/- 28m². (Libre actuellement)
- Studio 24m². Loué 346€/mois.
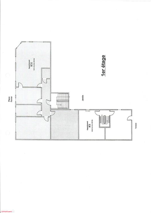
1° ETAGE.
- Appartement 2 chambres de +/- 80m².
- Hall de +/- 6m².
- Cuisine de +/- 10m².
- Salon de +/- 23m².
- Débarras de +/- 1m².
- 2 Chambres de +/- 20 et 15m².
- Sdb avec lavabo baignoire, wc de +/- 5m².
- Loué 497€/mois.
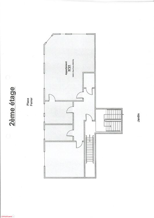
2° ETAGE.
- Appartement 1 chambre de +/- 70m².
- Salon de +/- 28m².
- Cuisine de +/- 13m².
- Hall de +/- 7m².
- Sdb de +/- 7m².
- Chambre de +/- 15m².
- Loué 394€/mois.
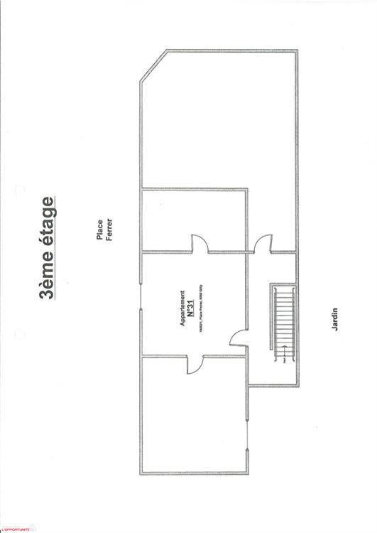
3° ETAGE.
- Appartement 1 chambre de +/- 32m².
- Living de +/- 13m².
- Chambre de +/- 15m².
- Sdb wc lavabo baignoire de +/- 4m².
- Loué 297€/mois.
.png?format=webp&width=1920&height=auto)































