SOUS OPTION - COMPROMIS EN COURS
VISITES ET RENSEIGNEMENTS AU 0478/720 699
PRIX DE VENTE DEMANDE 189.000€ (sauf offres supérieurs).
CARACTERISTIQUES
- Chauffage central au gaz.
- Châssis DV BOIS ET PVC.
- Toiture ardoises artificielles.
- Magnifique jardin arboré.
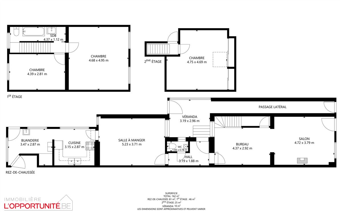
COMPOSITION
REZ DE CHAUSSEE
- Salon (4.72 X 3.79).
- Bureau (4.37 X 2.92).
- Hall (3.19 X 1.88).
- Salle à manger (5.23X 3.71).
- Buanderie (3.47 X 2.87).
- cuisine (3.15 X 2.87).
1° ETAGE:
- 2 chambres (4.68 X 4.95) (4.39 X 2.81).
- Salle de bains (4.37 X1.12).
2 ° ETAGE:
- 1 chambre (4.75 X 4.69).
- Un garage en option au prix de 15.000 Euros. RC: 69 euros.
.png?format=webp&width=1920&height=auto)











































