Magnifique appartement situé au 2ème étage, 2 chambres, bureau/dressing, avec terrasse, balcon et garage.
Faire offre à partir de 269 000€
CARACTERISTIQUES :
- Appartement deux chambres + bureau/dressing.
- Situé au 2ème étage.
- Électricité conforme jusqu’en 2044.
- Compteur bi-horaire.
- PEB B.
- Chauffage central gaz. Chaudière ACV.
- Châssis DV BOIS.
- Tente solaire.
- Visiophone.
- Jardin commun.
- Charges de copropriété +/- 300€/mois.
- A proximité du centre, des grands axes, des commerces et de l'Hôpital de Jolimont.
- Construction de 1993.
- Les travaux suivants ont été réalisés entre 2014 et 2019:
Renouvellement des terrasses, mise aux normes de l'ascenseur, nouvelle automatisation porte
ouverture/fermeture du garage collectif, nouvel ouvre - porte d'entrée électrique et caméra.
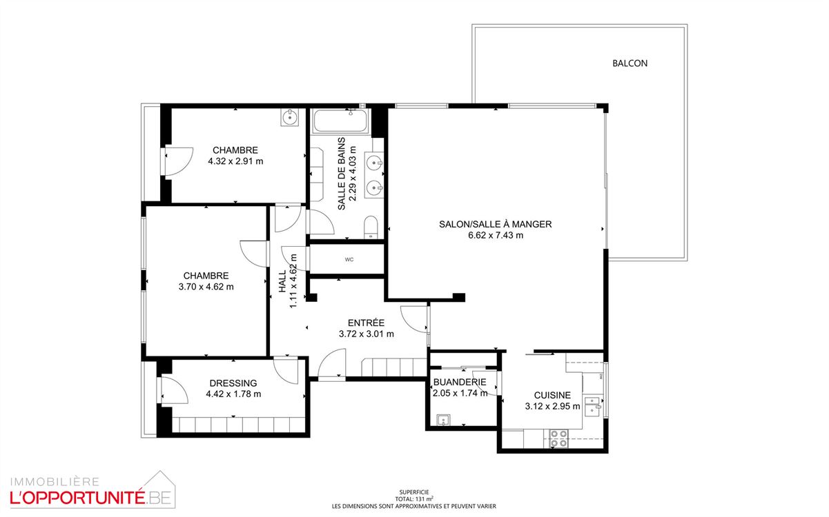
COMPOSITION :
- Hall d’entrée de +/- 10m².
- Living de +/- 49m² avec terrasse orientée sud/ouest.
- Cuisine neuve full équipée EGGO de +/- 9m².
- Buanderie de +/- 5m².
- Hall de nuit de +/- 6m².
- Bureau/Dressing de +/- 7m².
- Deux chambres de +/- 17 et 12m².
- Salle de bains, double vasque, wc, baignoire +/- 9m².
- Wc séparé de +/- 2m².
.png?format=webp&width=1920&height=auto)























