SOUS OPTION - COMPROMIS EN COURS DE SIGNATURE
Faire offre à partir de 279.000€.
Belle villa 4 chambres, véranda, parking et jardin.
CARACTERISTIQUES :
- Construction de 1993.
- Toiture en tuiles.
- Châssis DV PVC de +/- 2023 façade avant.
- Châssis DV BOIS façade arrière.
- Chauffage central au gaz.
- Chaudière Bulex.
- Boiler électrique.
- Grand et beau jardin sécurisé.
- Véranda de +/- 37m².
- Garage transformé en salle de jeux/chambre de +/- 17m².
- Terrasse de +/- 50m².
- Vide ventilé.
- Volets manuels.
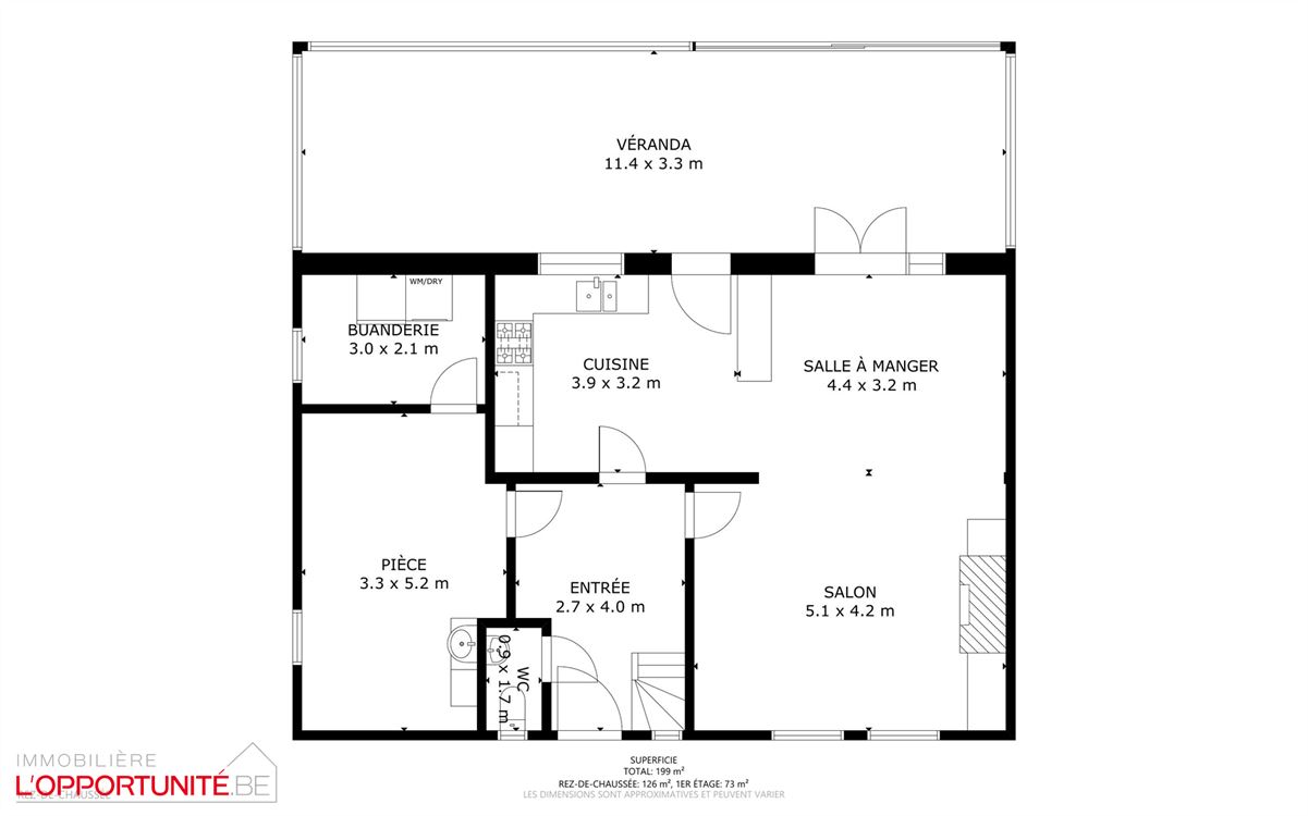
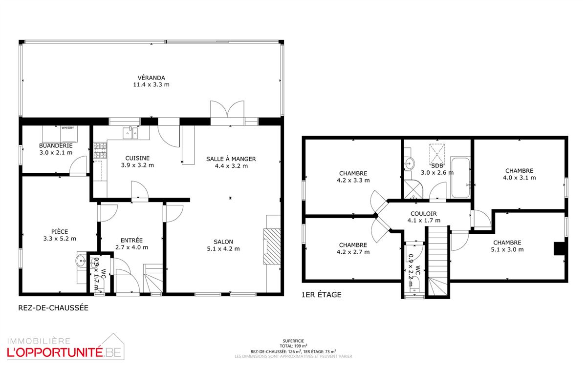
COMPOSITION :
REZ DE CHAUSSEE :
- Hall d'entrée +/- 10m².
- Wc séparé + lavabo de +/- 2m².
- Living/Cuisine équipée de +/- 46m².
- Buanderie de +/- 6m².
1° ETAGE :
- Hall de nuit de +/- 5m².
- Wc séparé de +/- 2m².
- Salle de bains avec baignoire, douche et lavabo de +/- 8m².
- 4 chambres de +/- 15, 14, 13 et 10m².
2° ETAGE :
- Grenier de +/- 20m².
.png?format=webp&width=1920&height=auto)































